Seniorenzentrum
Ausschreibung einer Wohnung im Seniorenzentrum
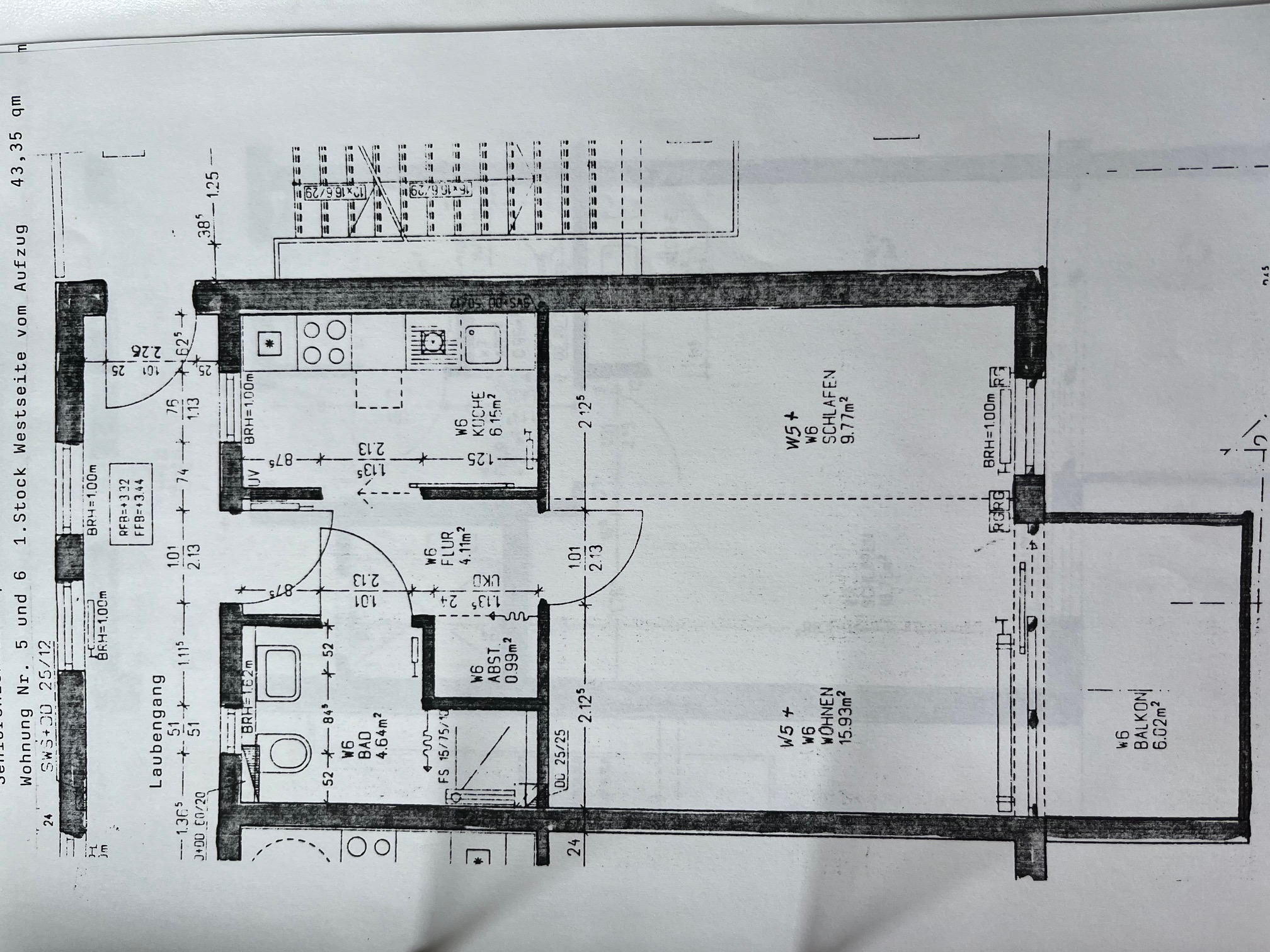
Ab 01.07.2026 kann im im 1. Obergeschoss eine 1 -Zimmer-Wohnung mit 43 qm bezogen werden.
Die Wohnung verfügt über ein barrierefreies Bad, Küche mit Spülmaschine, Kühlschrank, Herd und Backofen. Hinzu kommt ein Wohn-Schlafraum mit Balkon und Kellerabteil. Eine Gemeinschaftswaschmaschine und -trockner können in der Waschküche im Keller mitbenutzt werden.
Die Miete beträgt einschließlich der Nebenkostenvorauszahlung 560 €. (Beispielfotos und Plan siehe unten).
Bei Interesse melden Sie sich bitte auf dem Rathaus, Iris Jekel 07176-6563-23 oder jekel@spraitbach.de.
Wer Interesse an einer seniorengerechten 1 bzw. 2-Zimmer- Wohnung hat, kann sich auf eine Warteliste setzen lassen.
Anruf bei Frau Jekel, Tel. 07175-6563-23 oder per mail jekel@spraitbach.de.
Das 1996 erbaute Seniorenzentrum ist eine Wohnanlage mit 13 Wohnungen, die sich für ältere Menschen eignet, die sich nach wie vor weitestgehend selbst versorgen können. Abgeschiedenheit und Vereinsamung sind im Spraitbacher Seniorenzentrum kein Thema. Hier besteht für ältere Menschen die Möglichkeit miteinander den Lebensabend zu verbringen.
Hilfestellung gibt es durch die Seniorenbetreuerin von der Seniorengemeinschaft Spraitbach e.V.
Es gibt 1-Zimmerappartments, aber auch 1 oder 2 -Zimmer-Wohnungen mit seperater Küche zwischen 33 und 55 qm-Größe. Dazu gehört ein barrierefreies Bad mit begehbarer Dusche und Balkon. Alle Wohnungen sind mit Aufzug erreichbar und haben einen Abstellraum im Keller.
Impressionen / Beispiel für eine kleine Wohnung



 Wohn-Schlaf-Zimmer 1.jpg)
 Wohn-Schlaf-Zimmer 2.jpg)
 Kueche.jpg)
.jpg)
.jpg)

Bürozeiten Frau Noike
- Dienstag: 09:00 Uhr bis 12:00 Uhr
- Mittwoch: 14:00 Uhr bis 16:30 Uhr
- Donnerstag: 09:00 Uhr bis 12:00 Uhr